
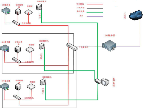
当TMS中控机房与放映机的距离小于100米时,可以使用网线布线。
(1)从TMS中控室到各影厅机房至少布2根六类非屏蔽网线。一根走千兆网络,用于给放映服务器传输影片和密钥,一根走百兆网络用于控制影厅设备。
(2)所布线两端连至任何设备,必须充分考虑设备高、宽、远、近,尽量多预留一定的线长,以免位置变动而需要重新布线,要求两端预留20-30cm网线。
(3)网线弯曲角度不能大于90°。
(4)要求使用正规品牌的六类网线,网线穿线管,要求与强电线距离30cm以上,避免强电线对弱电信号造成干扰。
(5)网线均使用568-B的标准线序制作,即线序为橙白、橙、绿白、蓝、蓝白、绿、棕白、棕。
当TMS中控机房与放映机的距离大于100米时,可以使用光纤布线。
(1)TMS中控室到各影厅机房布1根单模4芯或以上室外光缆。
(2)同网线布线一样,所布线两端连至任何设备,必须充分考虑设备高、宽、远、近,尽量多预留一定的线长,以免位置变动而需要重新布线。
(3)每个影厅需要准备好2个千兆光收发器,2个百兆光收发器,光纤两端需做好熔接固定工作。
(4)光收发器、光纤跳线和光纤熔接需要影院准备。
(1)6类非屏蔽网线 6类非屏蔽网线(CAT6)相比普通网线(CAT5),结构上有所不同,增加了绝缘的十字骨架,将双绞线的四对线分别置于十字骨架的四个凹槽内,而且电缆的直径也更粗。相比于普通5类网线具有传输距离长,传输损耗小,耐磨、抗压强等特性,满足千兆传输特性。
(2)6类屏蔽网线 相比于六类非屏蔽网线有一层包裹十字骨架和线芯的金属屏蔽层,适用于千兆网络中,也可兼容百兆网络。主要在强干扰环境下使用,能有效屏蔽外界电磁干扰,保证网络传输稳定性。屏蔽层不仅有限屏蔽外界电磁干扰,同时也阻断了线缆本身的电磁干扰,有效阻拦线缆对其他其他信号的干扰。但是整个施工布线工程较为复杂,难度较大,非专业弱电施工队伍实施不能达到屏蔽效果。(下期内容为大家介绍六类屏蔽网线的施工)
综上所述,使用六类屏蔽和六类非屏蔽网线均可以满足TMS布线基本需求,如果要求较高则使用六类屏蔽网线,但是要求施工队严格按照六类屏蔽网线施工规范去施工,否则不能达到屏蔽效果。
(1)单模光纤
传输单模式光波信号,光在光纤中直线传播,纤芯直径小9um。多用于长途干线,传输距离一般大于5km。收发器使用激光收发器,价格略贵。
(2)多模光纤
传输多模式光波信号,光在光纤中反射,纤芯直径大60um或62.5um。多用于小容量、短距离的传输,传输距离一般为2km-5km。收发器使用LED收发器,价格便宜。
(3)光纤接头种类
光纤连接器,即光纤接头也有好多种,来源于最早做光纤的几个不同企业的不同标准,下面对网络工程中常用的接头进行说明:
FC型光纤连接器:圆头,螺丝扣,常用于光纤配线架。
SC型光纤连接器:方头,插拔型,常用语路由器、交换机、光纤收发器。
ST型光纤连接器:圆头,螺丝扣,常用于光纤配线架。
LC型光纤连接器:方头,插拔式,常用于路由器、交换机。

随着技术不断更新,光纤材料成本也在不断下降,目前市场上单模收发器和多模收发器价格差正在逐步缩小。在影院环境中,单模和多模光纤均适用,影院可以根据实际情况选择光纤材料。